D-10: Dílenský prostor v budově D

Hlavní vlastnosti
a výhody
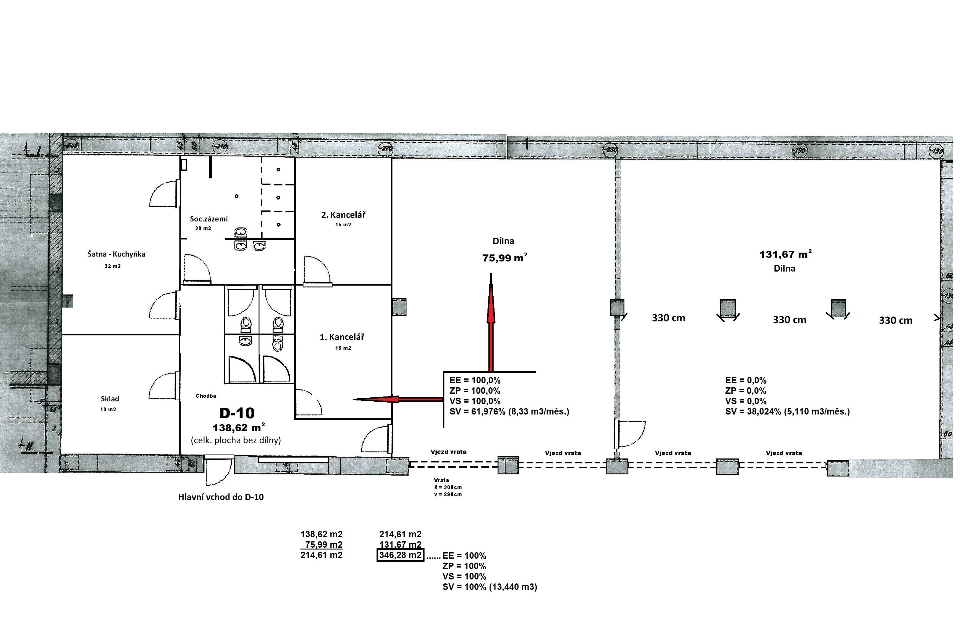
Dílenský prostor včetně sociálního a kancelářského zázemí pod označením „D-10“ o výměře 350 m² (včetně parkovací a manipulační plochy = 700 m²) v samostatné budově "D", v zadní části areálu. Kancelář je vybavena rychlým internetem.
K základnímu nájemnému se dále účtují též položky (paušální částky):
1) technická ostraha objektu budovy
Krom výše uvedených se dále účtují ještě další položky (procentuální podíly na provozních nákladech):
1) odvoz komunálního odpadu z budovy D
Energie :
1) zemní plyn: dle skutečné měsíční spotřeby samostatného měřidla
2) el. energie: dle skutečné měsíční spotřeby samostatného měřidla
3) vodné a stočné: dle skutečné měsíční spotřeby podružného měřidla
4) tzv. srážková voda: 13,824 m3/měsíc (konstantní množství), tj. v roce 2025 = 449,55 Kč bez DPH/měsíc.
Vše je fakturováno měsíčně zpětně, jen jistotu (kauci) ve výši jednoho základního měsíčního nájemného je nutno uhradit předem (ještě před převzetím předmětu nájmu) na účet firmy MIRAMART, spol. s r.o.

Příjemné okolí
Areál je obklopen zelení a nabízí klidné prostředí pro práci i relaxaci. Nedaleko areálu najdete restaurace, kavárny i parky, což oceníte nejen během pracovního dne, ale i při firemních setkáních nebo odpočinku. Vše potřebné máte vždy na dosah.
Vybavení kanceláří
Kanceláře v administrativní budově jsou vždy vybavené síťovými a telefonními přípojkami.
Výhody areálu
Dopravní dostupnost: Napojení na silniční, železniční a městskou dopravu usnadňuje distribuci zboží a zajišťuje snadnější přístup pro zaměstnance i zákazníky.
Flexibilní využití: Možnost využití komerčních prostor pro různé účely jako je výroba, skladování, prodej či jen parkování, anebo jako kancelářské zázemí.
Energie: Vždy se snažíme o co nejvýhodnější ceny energií.
Parkování: Vaše vozidla parkující uvnitř v areálu budou střežena díky pojezdové bráně.
Situační plán
Objevte náš moderní a flexibilní areál.
Celkový situační plán areálu
Budova
AB (admin.)
Pětipatrová administrativní budova, ve které se nacházejí kanceláře a sociální zázemí. Do této budovy lze též umístit vaše virtuální sídlo.
Budova
AB-PL
Prodejní budova, umístěná po levé straně administrativní budovy.
Budova
AB-PP
Prodejní budova, umístěná po pravé straně administrativní budovy.
Budova
B (dolní č.)
Komerční budova, přístup do spodní části budovy je situován z východní strany.
Budova
B (horní č.)
Komerční budova, přístup do horní části budovy je situován ze západní strany.
Budova
C
Budova, ve které se nacházejí dílny a sklady.
Budova
D
Budova, ve které se nachází kancelář, dílny a sklady, vlastní sociální zázemí.
Budova
F2 až F9
Budovy "F-2" až "F-7" a "F-9", ve kterých se nacházejí sklady, popř. garáže.
Kontaktujte nás pro více informací
Jsme tu pro vás, abychom vám pomohli s našimi odbornými službami a řešeními.








